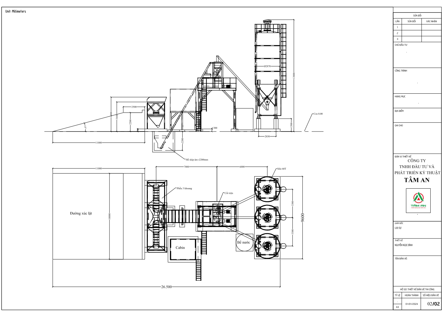
Cấu hình và năng suất của Trạm 60 - 3 Silo
Trạm 60 - 3 Silo được trang bị hệ thống trộn hiện đại với công suất lên đến 60m³/h. Với 3 silo chứa nguyên liệu riêng biệt, trạm có khả năng lưu trữ lượng lớn xi măng, cát, và các phụ gia khác để đảm bảo quá trình trộn diễn ra liên tục, ổn định, và nhanh chóng. Điều này giúp đáp ứng kịp thời nhu cầu của khách hàng, ngay cả trong các dự án có yêu cầu lớn về tiến độ.
Các ưu điểm vượt trội của Trạm 60 - 3 Silo
-
Chất lượng bê tông đảm bảo: Hệ thống cân định lượng và trộn tự động giúp kiểm soát chính xác tỷ lệ các thành phần nguyên liệu, tạo ra sản phẩm bê tông đạt tiêu chuẩn chất lượng cao, đồng đều về độ bền và độ dẻo. Các sản phẩm bê tông từ trạm luôn đáp ứng các yêu cầu kỹ thuật nghiêm ngặt của các công trình lớn.
-
Khả năng cung ứng liên tục: Với hệ thống 3 silo chứa xi măng dung tích lớn, trạm có thể hoạt động liên tục mà không bị gián đoạn bởi sự thiếu hụt nguyên liệu. Điều này đặc biệt quan trọng khi cung cấp bê tông cho các dự án có yêu cầu thời gian gấp rút.
-
Vận hành tự động và chính xác: Trạm 60 - 3 Silo sử dụng hệ thống điều khiển tự động hiện đại, giúp giám sát và điều chỉnh mọi thông số trong quá trình trộn, từ lượng nguyên liệu, thời gian trộn, đến độ ẩm của bê tông. Điều này không chỉ giúp giảm thiểu sai sót mà còn nâng cao hiệu quả sản xuất, tiết kiệm nhân công và chi phí.
-
Dịch vụ tận tâm: Tâm An cam kết mang đến cho khách hàng dịch vụ tận tâm, hỗ trợ kỹ thuật nhanh chóng. Với đội ngũ nhân viên chuyên nghiệp và giàu kinh nghiệm, Tâm An luôn sẵn sàng tư vấn và giải đáp mọi thắc mắc liên quan đến sản phẩm và dịch vụ.

Ứng dụng của Trạm 60 - 3 Silo trong các dự án xây dựng
Trạm 60 - 3 Silo của Tâm An đã và đang cung cấp bê tông cho nhiều dự án xây dựng lớn nhỏ tại khu vực Biên Hòa và các tỉnh lân cận. Sản phẩm bê tông từ trạm được sử dụng rộng rãi trong các công trình như:
- Nhà ở dân dụng và biệt thự cao cấp
- Các công trình công nghiệp như nhà xưởng, kho bãi
- Hạ tầng giao thông như cầu đường, bến cảng
- Các dự án xây dựng công trình công cộng như trường học, bệnh viện

Liên hệ với Trạm Trộn Bê Tông Tâm An
Nếu bạn đang tìm kiếm một đối tác đáng tin cậy trong cung cấp bê tông chất lượng cao, hãy liên hệ với Trạm Trộn Bê Tông Tâm An qua hotline 0977 826 439 hoặc ghé thăm website tramtronbetongtaman.com. Chúng tôi luôn sẵn sàng đáp ứng mọi nhu cầu của bạn với dịch vụ nhanh chóng và chuyên nghiệp nhất.
Trạm 60 - 3 Silo không chỉ là sự lựa chọn hàng đầu về chất lượng bê tông, mà còn mang đến sự tin cậy và hiệu quả trong từng công trình xây dựng. Hãy để Tâm An đồng hành cùng bạn trong mọi dự án xây dựng, góp phần kiến tạo nên những công trình bền vững và đẹp mắt!