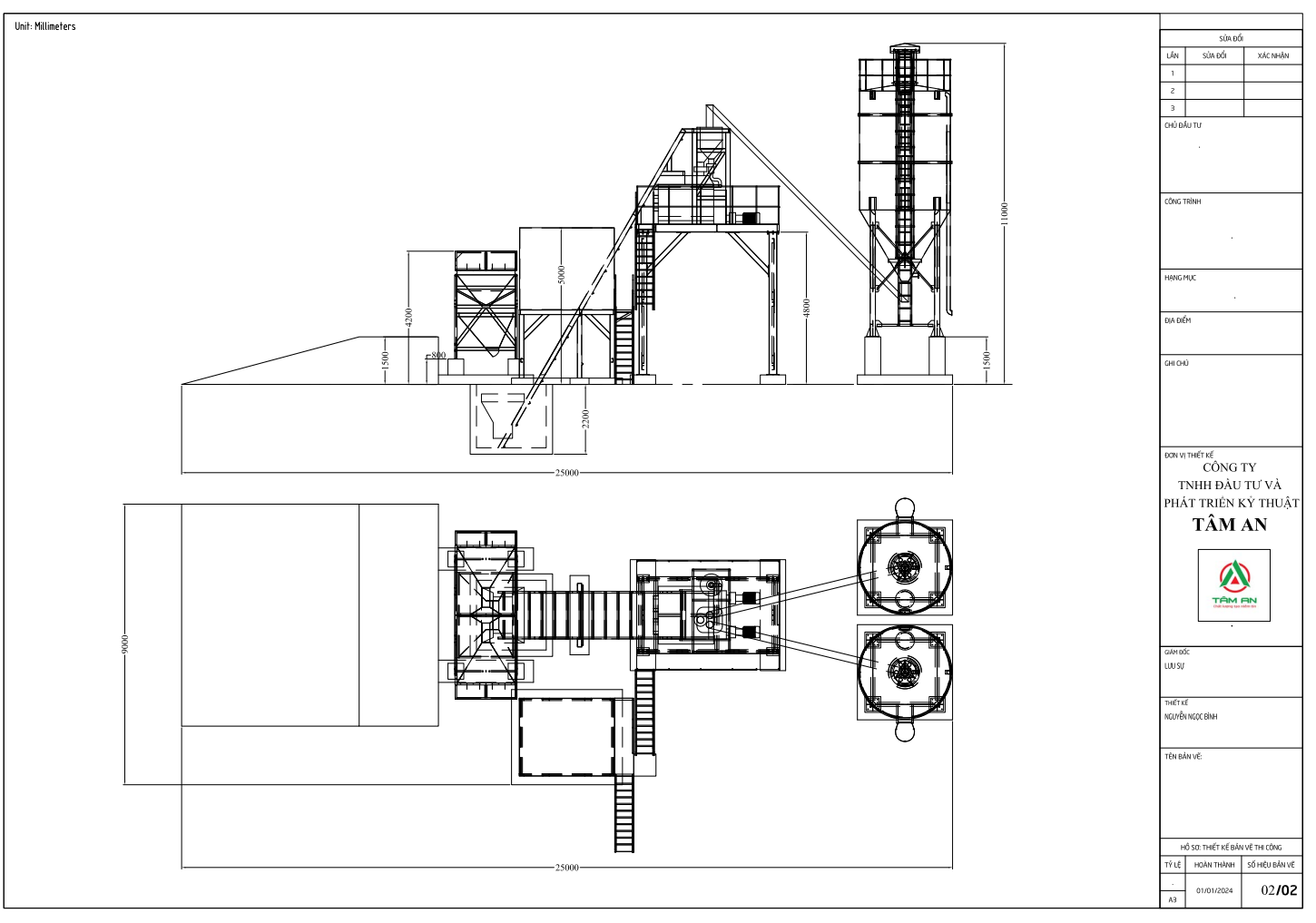
Trạm 45 - 2 Silo của Trạm Trộn Bê Tông Tâm An
Trạm 45 - 2 Silo của Trạm Trộn Bê Tông Tâm An, tọa lạc tại Nguyễn Ái Quốc, khu phố Cầu Hang, phường Hòa An, TP. Biên Hòa, Đồng Nai, là một trong những trạm trộn hiện đại và tiên tiến tại khu vực. Với thiết kế 2 silo chứa xi măng, trạm có khả năng lưu trữ và cung cấp nguyên liệu một cách ổn định, đảm bảo quá trình sản xuất bê tông diễn ra liên tục và hiệu quả.

Điểm nổi bật của Trạm 45 - 2 Silo
-
Thiết kế hiện đại và tiết kiệm không gian: Trạm được trang bị 2 silo chứa xi măng với dung tích lớn, giúp tối ưu hóa không gian lưu trữ và đảm bảo cung ứng đủ nguyên liệu cho quá trình trộn bê tông. Hệ thống vận chuyển và cấp liệu tự động giúp rút ngắn thời gian chờ đợi, nâng cao hiệu suất hoạt động.
-
Khả năng trộn đa dạng mác bê tông: Trạm 45 có thể sản xuất nhiều loại bê tông với các mác khác nhau, đáp ứng nhu cầu xây dựng của nhiều dự án từ nhà dân dụng đến công trình công nghiệp lớn. Chất lượng bê tông luôn được kiểm soát nghiêm ngặt, đảm bảo độ bền và tính đồng nhất.
-
Hệ thống điều khiển tự động: Trạm được tích hợp hệ thống điều khiển tự động thông minh, giúp quản lý và điều chỉnh tỷ lệ nguyên liệu chính xác, đảm bảo sản phẩm cuối cùng đạt chất lượng cao nhất. Điều này cũng giúp giảm thiểu sai sót và sự phụ thuộc vào yếu tố con người trong quá trình vận hành.
-
Dịch vụ chăm sóc khách hàng chuyên nghiệp: Với hotline 0977 826 439, khách hàng có thể liên hệ dễ dàng để được tư vấn và hỗ trợ nhanh chóng. Đội ngũ nhân viên của Tâm An luôn sẵn sàng giải đáp thắc mắc và cung cấp giải pháp tối ưu cho từng nhu cầu cụ thể.
-
Cam kết chất lượng và bảo vệ môi trường: Tâm An luôn chú trọng đến việc bảo vệ môi trường trong quá trình hoạt động. Các hệ thống lọc bụi và quản lý chất thải được trang bị nhằm giảm thiểu tác động tiêu cực đến môi trường xung quanh. Chất lượng bê tông luôn được duy trì ở mức tốt nhất, đáp ứng tiêu chuẩn xây dựng quốc gia.
Liên hệ với Tr

ạm Trộn Bê Tông Tâm An
Để biết thêm thông tin chi tiết hoặc đặt hàng bê tông chất lượng cao từ Trạm 45 - 2 Silo, quý khách hàng có thể liên hệ qua:
- Địa chỉ: Nguyễn Ái Quốc, khu phố Cầu Hang, phường Hòa An, TP. Biên Hòa, Đồng Nai
- Hotline: 0977 826 439
- Email: tramtronbetongtaman@gmail.com
- Website: tramtronbetongtaman.com
Trạm Trộn Bê Tông Tâm An cam kết mang đến cho khách hàng những sản phẩm bê tông chất lượng cao cùng dịch vụ chuyên nghiệp, đáp ứng mọi nhu cầu xây dựng và góp phần xây dựng nên những công trình bền vững.